
Naziv je došao od osnivačice JANE JACOBS (1916. - 2006.), urbanistice
Slojeviti urbanistički razvoj i bogata prošlost osječke Tvrđe kontinuirano privlače sveopću pozornost i nepresušni su izvori inspiracije, dok su njezini prostori omiljena mjesta rada, učenja i razbibrige Osječana svih generacija.
Prošlost, sadašnjost i budućnost Tvrđe česte su teme različitih diskursa. Mnogo puta su o njoj održana predavanja, vođene žustre rasprave, napisane knjige i brojni članci te izrađene konzervatorske studije. Izgrađena je zajedničkim trudom vojske i puka kao barokni grad-tvrđava u čijoj su se strukturi jasno razlikovali unutrašnji grad s ortogonalnim rasterom ulica i zvjezoliki fortifikacijski okvir sastavljen od bastiona, kazamatiranih kurtina i revelina.
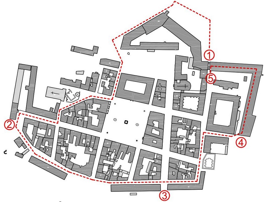
Nakon razgradnje fortifikacijskog okvira 1926. „gotovo cijelo jedno stoljeće Tvrđa, središnja urbana jezgra grada Osijeka stoji kao osakaćeni torzo usred neuređenih ledina (…) na mjestu srušenih dijelova nekadašnje bastionske trase“ (Uzelac, 2009). Kako bi Tvrđa dobila zasluženo mjesto u povijesti gradogradnje, nužno je prvo spoznati važnost izgubljene bastionske trase, stoga vas arhitektica Valentina poziva na zajedničku kružnu šetnju osječkom Tvrđom prilikom koje ćemo posjetiti lokacije Vodenih vrata (1), Valpovačkih vrata (2), Novogradskih vrata (3) i Donjogradska vrata (4) – svih vrata u sastavu izgubljenoga fortifikacijskog okvira.

Tijekom ove šetnje čut ćete priču o izgradnji Tvrđe, upoznat ćete tipične barokne fortifikacijske elemente te ćete uvidjeti važnost njihove prezentacije i složenost njihove rekonstrukcije. Šetnju ćemo završiti osvježenjem ispred Vodenih vrata u Fakultetskoj ulici gdje će vam ravnateljica Gradskih galerija Osijek Marijana Fumić predstaviti novootvorenu ArtOs galeriju (5) koja je posebna po tome što za svako kupljeno umjetničko djelo možete gratis dobiti jednu od osamdesetsedam kava iz različitih krajeva svijeta.
Uzelac, Z., (2009) Urbanističko-konzervatorska studija prostora bastione trase i vanjskih utvrđenja, povijesni razvitak i valorizacija bastione trase baroknog grada-tvrđave, osječke Tvrđe, Zagreb: Studio X
Ovo je druga po redu Jane’s Walk šetnja u Osijeku koju organizira Udruga OS4, udruga za promicanje kulture i zaštitu kulturne baštine Osječko-baranjske županije.
Udrugu OS4 osnovale su Tomislava Blatnik, Senka Dombi, lvana Haničar Buljan i Valerija Vuković Kandža 2023. godine. Promicanje kulture i očuvanje kulturnih dobara u Osijeku i Osječka-baranjskoj županiji čine temelj djelovanja Udruge OS4, uz usmjerenost na istraživanje, valorizaciju i unapređenje oblikovanja i korištenja javnih prostora. Aktivnim djelovanjem njeguje se suradnja s ustanovama iz kulture, znanosti i gospodarstva te domaćim i međunarodnim udrugama.
U želji za poboljšanjem kvalitete života pažnju posvećujemo afirmaciji i revitalizaciji zaboravljenih javnih prostora u gradu Osijeku i županiji te uključivanju građana u njihovo planiranje i korištenje. Održivost se promiče kroz načela 3R – Reduce, Reuse, Recycle, čime se stvara odgovorniji odnos prema okolišu i zajednici. Kroz organizaciju radionica i javnih tribina potičemo otvoreni dijalog među institucijama, udrugama i građanima, stvarajući pritom prostor za razmjenu znanja i ideja, mrežu suradnje i uzajamne podrške.
Jane’s Walk šetnje su besplatne loka Ino organizirane šetnje tokom kojih se ljudi skupljaju radi zajedničkog istraživanja, razgovora i uživanja u svojim kvartovima. Dok klasična razgledavanja više sliče predavanjima, ove su šetnje sličnije razgovoru uz šetnju. Voditelji dijele svoja iskustva i znanja, ali također potiču diskusije i sudjelovanje šetača. šetnje se mogu usredotočiti na bilo koji aspekt kvarta i bilo koju temu. Šetnje mogu biti ozbiljne ili zabavne, informativne ili objašnjavajuće. Mogu se usmjeriti na povijest nekog mjesta ili ono što se događa upravo sada. Svatko može voditi šetnje – jer je svatko najveći poznavalac kraja u kojem živi!
Naziv je došao od osnivačice JANE JACOBS (1916. – 2006.), urbanistice, koje je gradovima prilazila na posve nov i do tada nepoznat način, kao na socijalne cjeline. Smatrala je da je izuzetno važno da sami građani upravljaju razvojem gradova i kvartova u kojima žive i poticala je ljude da se bolje upoznaju s okolinom u kojoj stanuju, rade, polaze školu, bave se sportom, šeću … jer, kako je rekla, na taj način oni postaju svjesni toga kakvu životnu okolinu zapravo žele. Isticala je važnost i ljepotu bogatih i životnih gradskih pejzaža, “baleta pločnika”, kako ih je ona nazivala, procesa u kojima se razvija poseban odnos između stanara, susjeda i prolaznika koji život ulice čini ugodnim i prijateljskim.
Nasuprot jednoličnosti i praznine poslovnih četvrti, otuđenosti širokih prometnica i beživotnosti stambenih kvartova bez adekvatnih javnih prostora, ukazivala je na važnost pješačkih zona i općenito mjesta pogodnih za susrete s ljudima.
Jane’s Walk Osijek 02
- 27. rujna 2025. u 10:30 Tvrđa, Vodena vrata, Osijek
- BASTIONSKA TRASA OSJEČKE TVRĐE
- Voditeljice šetnje: Valentina Slabinac
- Trajanje: oko 60 minuta
- Procjena težine: laka
- Šetnja je besplatna i otvorena svima, bez prijave. Preporučuje se udobna obuća. Psi su dobrodošli.